Aller au contenu principal
Retour à la recherche

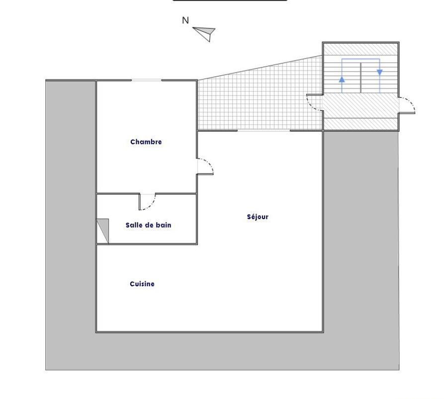
Appartement 2 pièces, 30 m2

Réf. : VA2670-14097
Dernière mise à jour de l’annonce : 25/11/2025

Vente

107 000 € (Honoraires de négociation inclus)
100 000 € (Prix net vendeur)
Montant des honoraires : 7 000 €
Pourcentage des honoraires : 7 %
Honoraires à la charge de l'acquéreur
14910 Blonville-sur-Mer
BLONVILLE SUR MER - Appartement T2 situé au 1er étage composé : D'un salon-séjour ouvert sur la cuisine, chambre et salle de bain avec WC. Balcon. Place de stationnement aérien. Appartement à rénover. A 600 m de la place et du centre. Charges trimestrielles : 122.53€ Nous aimons son environnement et ses possibilités. Nombres de lots dans la copropriété : 72 dont 36 en habitation

Général

Nombre de pièces : 2
Nombre de chambre : 1
Surface :  30 m2
Surface Carrez :  30 m2
Etat : A rénover
Nombre de niveaux : 1
Exposition :  Est

Bilan énergétique

Date du diagnostic :  09-04-2025
DPE
Logement économe
275 kwh/m²/an
Logement énergivore
GES
Faible émission de GES
8 kg CO₂/m²/an
Forte émission de GES

Depuis le 1er juillet 2021, c’est la plus mauvaise des deux performances (DPE ou GES) qui est retenue au final.

Équipements

Nombre de salles de bain : 1
Cuisine : Oui
Balcon : Oui
Stationnement : Oui

Conditions de vente

Prix HNI :  107 000 €
(honoraires de négociation inclus)
Prix net vendeur :  100 000 €
Honoraires :  7 000 € (Montant des honoraires de négociation)
Pourcentage d'honoraires :  7 %
Type d'honoraires :  À la charge de l'acquéreur

Contact

Adresse : 42 Rue Hamelin
Code postal :  14130
Ville :  PONT L EVEQUE