Aller au contenu principal
Retour à la recherche

Maison 6 pièces, 198 m2

Réf. : 61068-22
Dernière mise à jour de l’annonce : 04/12/2025

Vente

179 350 € (Honoraires de négociation inclus)
170 000 € (Prix net vendeur)
Montant des honoraires : 9 350 €
Pourcentage des honoraires : 6 %
Honoraires à la charge de l'acquéreur
61260 Le Theil
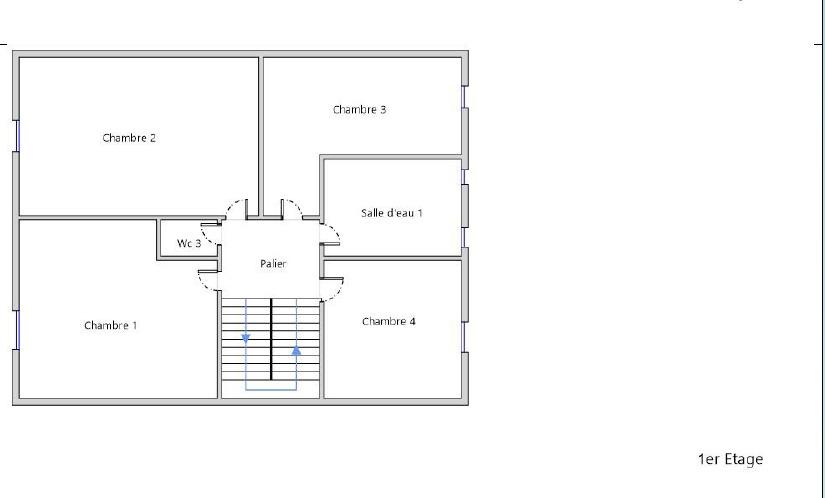
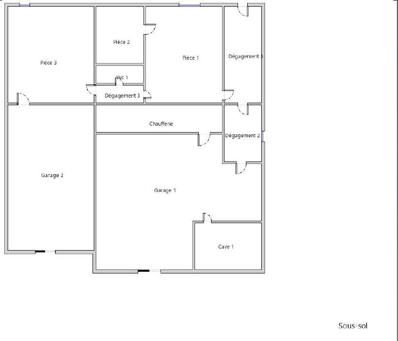
Réf. 61068-22 — Grande Maison Rénovée – Secteur VAL-AU-PERCHE Située sur la commune du THEIL SUR HUISNE, cette maison des années 50 entièrement rénovée offre de beaux volumes et un cadre de vie agréable, à proximité immédiate des commodités. 📍 À seulement 10 min de La Ferté-Bernard, 15 min de Nogent-le-Rotrou et 18 min de Bellême. ✨ Les atouts : environ 198 m² habitables sur 3 niveaux avec 4 chambres - profitez d'un beau terrain clos et arboré de 1 086 m²- 2 garages + stationnement extérieur - sous-sol total Chauffage gaz de ville, menuiseries PVC double vitrage, tout à l’égout 🛋️ Agencement : Rez-de-chaussée : Entrée - Salon/séjour lumineux de 35 m² avec accès terrasse et jardin - Cuisine aménagée et équipée - Bureau / bibliothèque - Véranda - WC indépendant 1er étage : Palier desservant 4 chambres - Salle d’eau avec WC 2e étage (à rafraîchir) :Palier - 2 pièces mansardées - Salle de douche, donnant un potentiel d'aménagement ! 🧭 Situation : Commune avec gare SNCF, écoles et toutes commodités - Accès à l’autoroute A11 à 10 km 📞 Contactez nous pour organiser une visite !

Général

Nombre de pièces : 6
Nombre de chambres : 4
Surface :  198 m2
Etat : Bon
Nombre de niveaux : 3

Bilan énergétique

Date du diagnostic :  17-07-2025
DPE
Logement économe
328 kwh/m²/an
Logement énergivore
GES
Faible émission de GES
66 kg CO₂/m²/an
Forte émission de GES

Depuis le 1er juillet 2021, c’est la plus mauvaise des deux performances (DPE ou GES) qui est retenue au final.

Équipements

Cuisine : Oui
Terrasse : Oui
Cave : Oui
Stationnement : Oui

Conditions de vente

Prix HNI :  179 350 €
(honoraires de négociation inclus)
Prix net vendeur :  170 000 €
Honoraires :  9 350 € (Montant des honoraires de négociation)
Pourcentage d'honoraires :  6 %
Frais d’acte :  14 517 €
Type d'honoraires :  À la charge de l'acquéreur

Contact

Négociateur : DIOT Jennifer
Téléphone : 06 08 73 83 52
Adresse : 5 rue du cimetière
Code postal :  61130
Ville :  BELLEME